The ultimate luxury experience

Boasting 4 oceanview suites, a large bunk room, casita and caretaker’s residence, this home is truly an entertainer’s dream. Enter the villa alongside a wall of water with over-water steps to gain entry. The main kitchen is a master chef’s dream with two large refrigerators, two dishwashers, a 48” range and an oversized center island, plus an additional prep kitchen perfect for entertaining. The dining room seats 12 with two additional outside dining areas. The laundry room features 4 sets of washers/dryers. A complete gym and cold plunge are included for those interested in a really great workout!

Both sides of the living area feature 40’ glass walls that disappear into the walls completely, making the entire home open to experience the beach life like never before. The 80’ resort style infinity edge pool with a large “Baja shelf,” a swim up bar and BBQ area with creative fire features. The massive jacuzzi will seat the whole family. The villa has been designed around a professional sized pickleball court with a viewing area and outside bathroom. It also features two separate 4-car garages large enough to house the include motorized toys and beach activities.

This new construction home, which will be professionally decorated with premium furnishings, luxury essentials, high-end decor and all the amenities you can dream. Finished turn-key completion in 18 months.

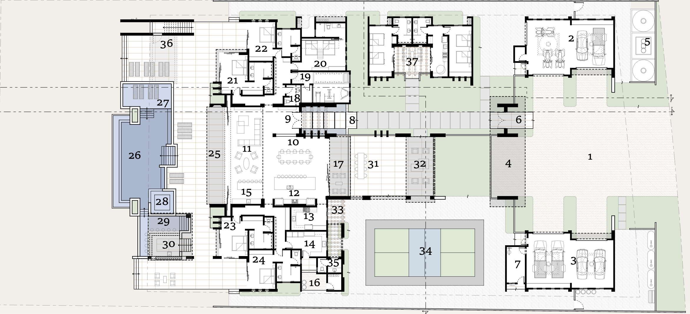
Layout

Street Buildings

1. Motor court
2. Two car garage
3. Four car garage
4. Covered carport
5. Water treatment plant
6. Main entry
7. Mechanical room

Outdoor Space

26. Infinity pool
27. Baja shelf
28. Spa
29. Pool bar
30. BBQ terracea
31. Kitchen terrace
32. Courtyard terrace
33. Courtyard bar
34. Pickleball court
35. Outdoor powder room
36. Pool equipment room
37. Casita

Main House

8. Entry
9. Entry vestibule
10. Dining room
11. Living room
12. Kitchen
13. Chef’s kitchen
14. Laundry
15. Bar
16. Service patio
17. Terrace dining
18. Powder room
19. Gym
20. Bunk bedroom
21. Master suite #1
22. Master suite #2
23. Master suite #3
24. Master suite #4
25. Family terrace